Clancy Moore architects
66 Meath Street / Crosstick Alley
D08 DK64 Dublin, Ireland
+353 (0) 1 709 3005
info@clancymoore.com

A major wastewater treatment plant and associated landscapes for Arklow town

2016 - 2025

Clancymoore Arklow1
Clancymoore Arklow5
Arklow 4 Ground Floor Plan
Clancymoore Arklow2
Arklow 7 Axonometries
Clancymoore Arklow7
Clancymoore Arklow6
Clancymoore Arklow4
Clancymoore Arklow9
Clancymoore Arklow8
Clancy Moore have completed works as lead architects on a major piece of civic infrastructure for Arklow. Prior to this project Arklow had no water treatment and raw sewerage discharge badly impaired the social, ecological and economic development of the town. Clancy Moore were selected as architects as part of a design competition. Working with Ayesa and ARUP for Uisce Éireann our design builds itself about the practical requirements of the plant and the sites sensitivities on a prominent part of the town. Operational aspects are stacked and massed into distinct elements which hold yards between. This allows reduced need to pump, as the plant works under gravity. The reduced footprint also allows significant areas of the site to be rewilded. The facades act as infrastructural armatures, holding cranes and lighting, sheltering working areas, providing a roof to house a photo voltaic farm and sealing the treatment sections of the plant from the broader environment. The design works with the expressive potential of these rational requirements and makes civic face in keeping with the industrial processes and histories of the site. It was hailed for its innovation in the planning decision to grant permission for the project. The project was completed in April 2025 with Ward and Burke acting as main contractor and Sean Dockery as their site architects. Photography here all by Johan Dehlin, apart from the opening wetland photo which is by Camilla Crafa and Piera Bedin

Collective housing on a former industrial site

2023-

Riverside Clancymoore
Graybackground
Riverside2 Clancymoore
A housing project on a former industrial site. The project aligns itself to an existing escarpment, framing an existing chimney. The apartments are arranged in a serrated form to maximise light, aspect and privacy. This allows each apartment to capture a generous threshold onto the deck access - affording storage and a space to meet. Currently in planning

Works to restore, augment and reimagine an historic cinema in Dingle

2024-

Clancymoore Phoenix1
Clancymoore Phoenix2
The Phoenix in Dingle is one of Irelands oldest cinemas, first opening its doors in 1921. Shuttered since 2019, it was saved from dereliction by new owners in 2024. Clancy Moore are engaged to research, reimagine and restore the building and its attendant spaces. Currently at feasibility stage. Photography by Camilla Crafa and Piera Bedin

House on a Hillside

2018-2023

Gable
Hill View
Eyebrow
Plan
Interior
Sun Rm
This project is for a family planning to return to Ireland. Their brief was deceptively simple. They sought a house both for themselves, and one that could comfortably accommodate large numbers of extended family and friends at regular intervals. We designed it to be robustly made to thrive that it might gain its character from years of repeated use and abuse. It is to be a place to live and age in, to gather and to be alone in.(photos here by Noreile Breen and Sue Barr)

March 2024

A+U 642

Guest Edited by Tom dePaor and Andrew Clancy A+U 642 features several projects from Clancy Moore alongside works by 5 other practices.
Au 642

01st August 2023

NCAD Masterplan

Clancy Moore in collaboration with TAKA architects are working on a masterplan for the entire NCAD campus. This incredible place has educated many of Irelands leading creative thinkers and is badly in need of capital investment. Incorporating a bottom up approach, and building from a rich survey of the social and physical contexts of the school our emerging strategy involves minimal interventions as well as larger scale works. The initial stages of this work were positively received by Minister Simon Harris. We are now working a full business case for HEA funding to be submitted in early 2024.
Img 5631

1st August 2023

Social Housing Castleblayney

Clancy Moore placed second in the open design competition for new social housing in Castleblayney co Monaghan. Our design involved making a generous shared courtyard, which acted as sthreshold, play space extension of the civic spaces of the town. The proposed construction involved a low carbon approach involving stick build timber. With all apartments universal access it also sets a new standard in terms of inclusion for people of all levels of mobility.
Courtyard

01st July 2023

Mendrisio

Andrew and Colm have been invited to act as Guest Professors in the renowned Accademia di Architettura Mendrisio. Our studio will run in the Autumn Semester for the next 4 years and will involve using fiction as a site, allowing our students explore contexts in depth, and to propose work which acts in emtpahy with the social, climatic and narrative ideas in the work. Our reading list involves works by Hisham Matar, Zadie Smith, WG Seabed and Chimamanda Ngoni Adichie. Follow the work here.
Larissa Kiril

01 Jan 2023

School in Renens

Clancy Moore placed 4th in this open competition for a school and community facilities in Renens, Switzerland. Our design makes an enabling landscape in which classrooms link to the exterior via terraced external play areas. The site is structured to allow core facilities such as the library and sports halls to be shared with the broader community. The language of the architecture was found in a careful consideration of weather, water, and energy generation. This competition design was made in collaboration with Tekhne SA; Muttoni SA (engineers) and CWA SA (landscape designers). Images by Aiva.
Aiva 2023 Posts21 Web

01st December 2022

Kay Fisker Book

Our book about the Danish Architect Kay Fisker is now published. Fisker built many extraordinary housing schemes, mostly for non-profit workers’ housing associations, and developed innovative, high-density, low-rise block schemes, which have proven useful and influential to the growing number of contemporary architects who have examined his designs. Beautifully illustrated with photographs and architectural drawings mostly made by our students in Queens Belfast, this book documents and critically analyses three of Kay Fisker’s seminal housing projects in Copehagen: Hornbaekhus (1923), Vestersohus (1935-39), and Dronningegarden (1943- 58). These projects reflect how Fisker’s work contains valuable lessons for contemporary architects in economy, precision, and generosity in housing design. Essays by Job Floris, Martin Soberg and others the book shows his continuing relevance today. Published by Lund Humphries
Cover

A room for a novelist in a back garden in Dublin

2020

Colfershed01
Colfershed11
Colfershed17
Almaroad59
This project makes a space for a novelist to write in solitude in his garden. With the site inaccessible to builders behind an existing terrace of houses we designed the room so it could be constructed off site and craned into position. This aspect governed the design, meaning it became an exercise in éspace minimum, in order for its weight to work with the capacity of the crane. The form and weight limits were shaped by these limits - shaping both form and tectonics with the room being made with an exoskeleton which allowed it to be hung when in motion and to sit on its foundations once in position. With these contingencies we found space for a rich internal world, lined in red stained beech and mirror. It provides a desk to work from, and a daybed to rest. Placed in a corner of the garden the room seeks to capture a series of spaces between itself and the surrounding planting. Recognising that repose is as important as production the room reaches beyond the site also, providing a distant view to the sea from the daybed via its mirrored ceiling.(Photos here by Fionn McCann)

30 June 2022

Cambridge House

Clancy Moore working on a compact proposal for senior living in Ringsend, Dublin. Image by Aiva.
Clancy Moore Cambrige Street Overcast

7th September 2022

AMAG publication

Clancy Moore’s work has been extensively featured in AMAG 28 along with friends Steve Larkin and Ryan Kennihan. The editors comment that “Each project thus represents an addition to a place, be it partial or total, material or immaterial, that not only becomes part of the landscape, but whose encounter with and incorporation into the natural context allows for and reaffirms its total sense of belonging and shared use.A slow architecture, whose characteristic and fundamental purpose is well-being, adaptability and the enhancement of such simple and common issues as living, sharing, freedom, encounters, the collective, permanence and condition. Entirely devoid of any symbolic or stylistic pretension.” Purchase the book here
Amag

Shortlisted competition entry for Grangegorman Development Agency

2021

Garden View
Focas Section 1 50 Copy
Lab View 2
Office View
Focas Section
The FOCAS research institute is a part of the TU Dublin Campus - housing advanced microscopy laboratories and support services. Our design for the second stage was developed in partnership with COADY partnership. Our proposal for the open competition placed the building to make a series of public spaces and gardens about the building, to build a community between research facilities. This location also allows the building resolve level differences on the site to create a rich internal landscape of conversation and encounter. This layout was inherently flexible to future changes in use while catering for the high level of vibrational control and service access required by the laboratories. The design was calibrated to be low in carbon, using minimal depths of material, a composite steel and timber structure and a layered facade which is demountable and recyclable.

29th September 2021

EU Mies Award Nomination

We are delighted that our Atcost project has been nominated for the EU Mies Award 2022. The project, for Drawing Matter in Somerset, involved converting a barn for use for education, performance and storage.
Dm Summer School 2021 ©Sue Barr 4926

Red Pavilion, London Festival of Architecture

2015

Big Red 1
Big Red 5
Cm Sl Taka Red Pavilion Cubitt Sq Dg 24
Big Red
Big Red 6
053 Plan 1 Large Edit
Big Red 2 Edit
053 Plan 2 Large Edit
Big Red Section Edit
Big Red 4
Big Red Axo Edit
Cm Sl Taka Red Pavilion Cubitt Sq Dg 28
This temporary pavilion for the London Festival of Architecture was a collaboration between Clancy Moore, TAKA and Steve Larkin. It explores various types of intimate public space, from arcades, market halls, snugs, park benches. These are assembled to make a facade to Cubitt Square in Kings Cross.(Photos here by David Grandorge and Andy Stagg)

Refurbishment of a Victorian Home, Dublin

2018-2020

Cma036 Dm
Ailesbury Gf Plans
Cma028
Dsc01259
Cma014 Dm Edit
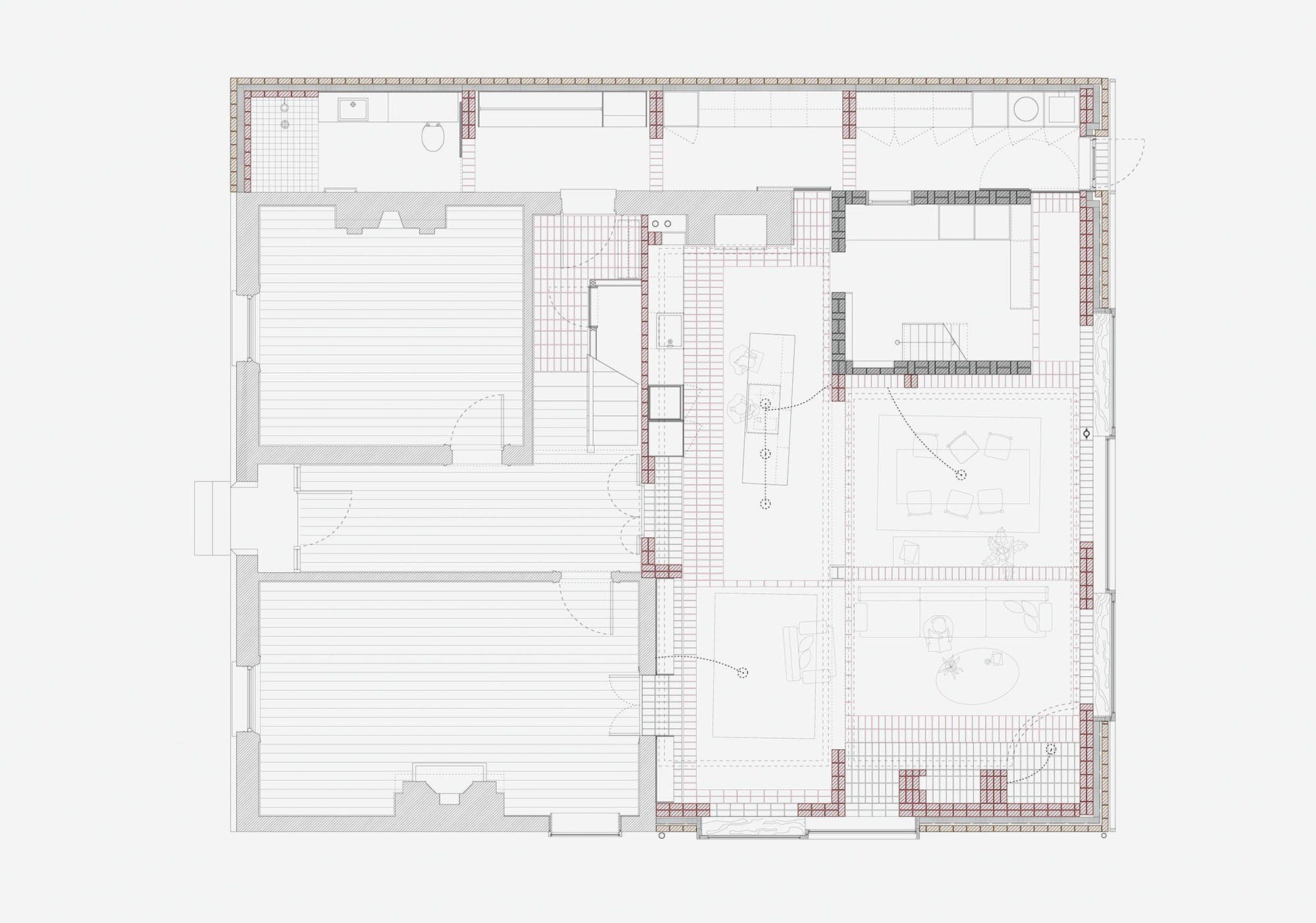
Sometimes you don’t need to add space to transform a house. In this project a previously modified Victorian house was renovated, with minimal increase in floor area. Our work to the rear is less an addition than it is a weaving, building on a careful consideration of the site as we found it. The design is made in a series of bay windows and roof lights which imply rooms of various scale in a large open plan. The rear wall of the house is propped at the first floor level by a steel column which opens up the existing rooms to the back of the house as one large living space. This structural figure anchors the spaces surrounding it. In spite of the terrace condition, each of these ‘rooms’, for cooking, gathering, eating and relaxing, is lit from all directions.(Photos here by Fionn McCann)

The conversion of a warehouse for use as a studio and dwelling

2017-2018

Cma 33Ar17 Copy
Cma11 Copy 4
Cma28 Copy
Axo Portbello
Cma 33Ar08
Cma50
Cma 33Ar13
Cma14
Gf Plan
Cma16
33Ar50
Cma29
Ff Plan
Cma 33Ar16 Copy 2
The existing warehouse had a delicacy in its structure, and in its layered spatiality built from an ad hoc collection of screens, gantries and ladders. In converting to use as a house we built the design to preserve and enhance these qualities. Two upper levels of bedrooms - one for parents, the other for children sit either side of the major living space. At the ground level smaller spaces such as kitchen, den and studio are divided from this central space by a series of figurative elements - columns, stairs, screens and furniture.(Photos here by Fionn McCann)

Competition entry for Sara Hilden Museum, Tampere

2020

Snow
Tampere Plan
Stairs
Tampere View 1
The museum is placed in four volumes, linked on half levels by a central stairs and lift. The result is an interconnected landscape of galleries, event spaces and more. The volumes step to preserve existing trees on site, and to make pocket public spaces between the building and the city.

A multigenerational dwelling for a number of growing families in Dublin

2008–2012

Clancymoore Img 7986 Bw
Mg 6781 Lr
Mg 4896
Mg 4943
Mg 7393 Lr
Clancymoore Img 8029 2
Desat  Mg 8331
Quarry Site Plan Edit
Mg 4552 Edit
Quarry  Gf Plan Edit
Clancymoore Img 8239
Mg 4627 Edit
Quarry Section Edit Ii
Quarry Axo Edit
Mg 7399 Lr
Mg 8288
Situated in a disused phylite quarry, and in a very sensitive landscape our approach was to think of the architecture as infrastructural, spanning from rock outcrops and making the quarry floor into a shared garden. Due to uncertain ground conditions, the houses act as an inhabited bridge, spanning between natural and man made outcrops forming sheds a shared entrance staircase. The houses language derives from the structure necessary to achieve these spans. Internally more intimate living spaces and bedrooms occur in a lower north-facing wing. Taller living spaces address the south. The form of the two dwellings closes the quarry to create a shared communal garden room overlooked by a long verandah and the living rooms.(Photos here by Alice Clancy)

Alterations and additions to a house in South Dublin

2017

Dscf6550 Rev A
Dscg4B6501 Client
Cm Ar 5314
Albany Paln Wide 2
090 Albany Sections 2 X
Dscf6565 Rev A
090 Albany Sections 5 X
Dscf6562
090 Albany Sections 6 X
Dscf6545 Rev A
090 Albany Sections 7 X
Dscf6538 Rev A
Albany 8
Albany Axo Edit
Albany Windows Axo 2 Edit
Img 2425 B Copy Bw
Cm Ar 5306
This domestic reworking builds itself about the requirement to prop an upper level return. Using this central column as a figure to build from the project is constructed in layers, each tuned to mediate between the interior and the exterior, capturing niches and light between.

Renovations and additions to a house in South Dublin

2015—2016

Belgrave 1
Belgrave 2
Belgrave 4
Clancy Moore Belgrave
Belgrave 3
Axo Belgrave
Belgrave S Axo Edit
The existing interior of this house was one composed of objects - furniture and space carefully arranged by the domestic eye over time. In the renovation of the house we sought to preserve this conversation. So each new intervention is considered as a discrete autonomous object that would enter into a conversation with the existing elements of the house and its furnishings. The primary addition to the house is the extension to the return of the house. Made in Steel it is intended both as a pavilion and an oversized piece of garden furniture.(Photos here by Alice Clancy)

The conversion of a precast concrete barn to use as a gallery and a house.

2018

Shatwell X
Shawwell 8
Shatwell Site Plan Edit X
Shatwell Plan Wide
Shatwell Axo Site Edit
Shatwell 3
84
Shatwell Survey Plan
Shatwell 12
Shatwell Colour Plan Ii
Shatwell 10 Resize
Shatwell 11
Shatwell Axo Wide
Shatwell 7
This project is born from the found figure of the central branching support to an existing portal framedbarn in Somerset. We enjoy this moment with it’s ability to speak about system and inflection at once. The scheme exposes this condition. Building out from this in a fragmentary process the proposition becomes a series of aedicules, props and rooms which capture and frame this existing structure. It proposes a conversational architecture, contingent and ordered, complex and ambiguous, nuanced and rigorous.

A small inner city church needed more space, Dublin

2008

006 07
Plan Edit
006 04
Site Plan Edit
006 08 Edit
Section Edit
006 05
006 01
A small inner city church needed more space to allow for flexibility in catering for its dynamic congregation of new arrivals to Ireland, along with its more established community. We wrapped these new spaces around the entrance, manipulating the form to allow it to frame the existing architecture for those entering.(Photos here by Alice Clancy)

A collection of studios for differing arts practices in a park

2008–2009

Albert Model Internal 2
Albert Model Cast 7 X
Alberts Axo Slide Edit Ii
Albert View 3 Edit
Alberts Plan Edit Ii
Albert Render Perspective 1 Copy
Alberts Site Plan Edit 2
Albert Model Cast 4
Albert Model Cast 3
Albert
The grain of the north-lights allow the simple form to be subdivided into a series of spaces to suit varying arts practices, from multimedia, to painting, sculpture and music.

Alterations to a ‘House of the Middle Size’ Co Kerry

2008 - 2010

Carragh Shot 13
Carragh
Carragh Shot C24
Shot 17
Carragh Shot 06
Carragh Shot 04
Carragh Shot C10
Carragh Shot 15
Directionallightwithswimmercurves
This project takes the form of a series of extensions and alterations to an 18th century house at the edge of a lake. The project is a columnar field, its rhythm and order derived from the proportions of the original house. This makes a deep threshold between the existing discrete interiors and the richly planted garden. Clearings and linings in this space make rooms, and the weathering line steps to make verandahs and porches.(Photos here by Alice Clancy)
×

Clancy Moore architects

Clancy Moore is an architectural practice based in Dublin, Ireland. Established by Andrew Clancy and Colm Moore in 2008 we seek to understand context in the fullest sense of the word. We enjoy how physical, historical, social, legislative and economic aspects all impinge and shape architecture, and find that it is in this abrasion that projects frequently find meaning and clarity.

We have a work method to support this based on conversation and curiosity. We seek congruencies in this conversation that allow our architecture to speak about the place it stands in, the people who use it, the techniques and people that made it, and the broader society it is a part of.

The practice designs cultural, infrastructural and residential work in Ireland and elsewhere.

People

Andrew Clancy is Professor of Architecture in the Kingston School of Art, and directs REGISTER - a research grouping which encompasses a wide range of means to engage with, research and disseminate thinking about the built environment. He is visiting Professor to the Accademia di Architettura Mendrisio, and was Visiting Professor at the Arkitektskolen Aarhus, Denmark in 2015. He has examined and been a guest critic in a wide range of schools including ETH (SUI); Academia di Architettura Mendrisio (SUI); EPFL (SUI); TUM (GER); AHO (NOR); Kaiserslautern (GER); AA (UK); Cass (UK); TU Dublin (IRL); Glasgow School of Art (UK); Dundee (UK); Aberdeen (UK). He has a PhD from RMIT and is a member of the Royal Institute of Architects of Ireland

Colm Moore was educated in UCD, graduating in 2002. He established Clancy Moore Architects with Andrew in 2008. Colm Completed a PhD by Practice with RMIT in 2018. He is director of the M.Arch programme in Queens University Belfast and runs a unit there. He is visiting Professor to the Accademia di Architettura Mendrisio, and has been guest critic and invited lecturer in numerous schools including UdK (GER); Glasgow School of Art (UK); UCD (IRL).

If you are looking to work with us please send applications to jobs@clancymoore.com

Collaborators

Tobias Beale (associate), Camilla Crafa, Piera Bedin, Joe Franklin, Larissa Lopes

Alexandra Pickerill, Seungmin Han, Gareth Hammond, David Magennis , Erang Park, Marc Golden, Elena Cerisola, Andrew O’Murchu, Mathew Kernan, Anna Dalla Costa, Andrea Maretto, Niccolo Cesaretti, Rae Moore, Simone Turkewitsch, Shane Reid, Billy Mooney, Colm Dunbar

Exhibitions

  • AAI Awards Exhibition 2023
  • Alternative Histories - London, Brussels, Dublin 2020
  • 40 Under 40, Athens, Paris, Dublin 2019
  • Venice Biennale 2018
  • PRS, BAU School of Design, Barcelona 2018
  • AAI Awards Exhibition 2017
  • RIAI Awards Exhibition 2017
  • AR, House of the Year, John Soane Museum, London 2016
  • Nine Lives, Kilkenny 2015
  • London Design Festival 2015
  • Nine Lives, London 2015
  • AAI Awards Exhibition 2013
  • RHA, Summer Show, Dublin 2013
  • Venice Biennale, Backstage Architecture 2012
  • Made, Ormeau Baths, Belfast 2012
  • Made, UCD, Dublin 2012
  • Made, RHA, Dublin 2012
  • Rebuilding the Republic, Louvain 2012
  • AAI Awards Exhibition 2010
  • RIAI Awards Exhibtion 2009
  • Now What?, Dublin 2009
  • RHA, Summer Show, Dublin 2009

Lectures

  • UCC / CCAE Invited Lecture - 'Before Architecture and After'  2025
  • TUM, Studio Krucker Bates Talk - 'Before Architecture and After'  2025
  • Johannesburg GSA Research Week Invited Keynote 2025
  • AHO, Invited Lecture - 'Before Architecture and After'  2024
  • EPFL, LIF studio Invited Lecture - 'Before Architecture and After' 2024
  • Johannesburg GSA Critics Week Keynote 2023
  • Porto Academy, FAUP - 'In Conversation' 2022
  • AF Architecture on Stage - 'Practical Completion'  2022
  • TU Munchen Invited Lecture - 'Practical Completion'  2022
  • London Met Invited Lecture - 'Unfinished Business' 2022
  • AF 100 days Studio 'Critical Practice' 2020
  • Isolation Talks, Sydney 2020
  • UdK Invited Lecture, Berlin 2018
  • Europa Talks, Venice 2018
  • AAI lecture, Trinity College Dublin April 2018
  • RIBA Lecture 2018
  • RIAI London, Lecture 2018
  • Udk Berlin 2017

Awards

  • AAI Downes Medal - Arklow WasteWater 2025
  • RIAI Sustainability Project of the Year - Arklow WasteWater 2025
  • RIAI Public Project of the Year - Arklow WasteWater 2025
  • AAI Award for House on a Hillside 2024
  • RIAI 'Best workplace' for Writers Room 2023
  • EU Mies Award - Nominated for Writers Room 2023
  • AAI Award for Atcost, Shatwell Farm 2023
  • AAI Award for Writers Room 2022
  • AJ Small Projects - Shortlisted 2022
  • EU Mies Award - Nominated for Atcost 2021
  • FOCAS International Design Competition - Shortlisted 2021
  • AAI Award for Ailesbury Park 2021
  • AR Peter Davey Award 2019
  • Europe 40 under 40 2019
  • RIAI Award - Winner Best extension 2019
  • Image Architects of the Year  2019
  • BD Young Architect of the Year 2018
  • Exhibitor at Biennale Architettura 2018
  • AAI Award – Remaking a Victorian Terrace 2017
  • RIAI Awards – Shortlisted for House of the Year 2017
  • AR Pop Up Award – Red Pavilion Shortlisted 2016
  • Irish year of Design – London Pavilion 2015
  • IDI Best Furniture Award 2014
  • AR Highly Commended for House of the Year 2014
  • Wood Award – Residential 2014
  • IDI Best Residential Interior 2013
  • IDI Best Furniture 2013
  • RIAI Award – House of the Year Slievebawnogue Houses 2013
  • AAI Downes Medal – Slievebawnogue Houses 2012
  • RIAI International Competition – Aoibhneas Refuge Shortlisted 2011
  • OPW / Irish Arts Council Kevin Kiernan Award Bursary 2011
  • Irish Arts Council Bursary Award 2011
  • RIAI Awards – Award for Church of St George and St Thomas 2010
  • RIAI Awards – Best House Extension for Lake House 2010
  • RIAI International Competition – WCAW Shortlisted 2010
  • Architectural Association Award – Lake House 2010
  • Concrete Society of Ireland – Lake House 2010
  • Architectural Association Special Mention 2009
  • Irish Arts Council Bursary Ward 2009

Publications

  • A+U 642 '6 Architects from Ireland'  March 2024
  • 'Kay Fisker - Block Terrace Square' Lund Humphries September 2022
  • AMAG 28 September 2022
  • 'Review: I See Earth' Drawing Matter February 2022
  • 'My Kind of Town' Architecture Today November 2021
  • 'The Glue That Binds Us' Architectural Review July 2021
  • 'Urban Embrace' Architecture Today  September 2020
  • 'Averted Gaze' Drawing Matter August 2020
  • 'Can Architecture be Critical' Architectural Review July 2020
  • 'Foreign Correspondence' Architectural Review July 2019

Credits

Designed by Studio Mathias Clottu
Programmed by Benedict de Silva